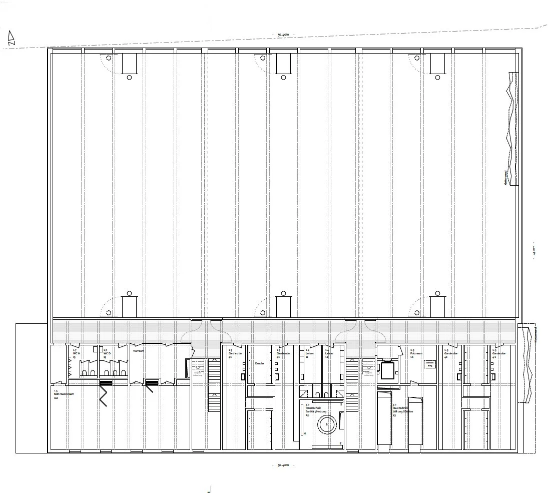
Wettbewerb, Dreifachsporthalle in Schwarzsee

3. Rang

Kategorie
Wettbewerb, ohne Rang

Auftraggeber
Staat Freiburg

Team
Beer Holzbau, Holzbau
Weber + Brönnimann, Ingenieur
Weber + Brönnimann, Landschaftsarchitektur
Holzprojekt, Holzbauingenieur
Enerplan, Fachplanung Energie + Gebäudetechnik
Crottet, Elektroplanung

Termine
2019/2020

Visualisierung
WLK

Previous
Previous

Wettbewerb Schwimmhalle in Belp

Next
Next

Wettbewerb Alterszentrum Ried in Biel