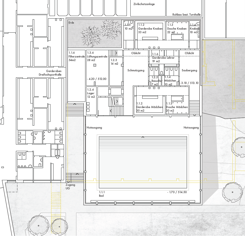
Wettbewerb Lehrschwimmbecken Neumatt in Belp
ohne Rang
Kategorie
Wettbewerb, ohne Rang
Auftraggeber
Gemeinde Belp
Team
Weber + Brönnimann, Bauingenieur
Termine
2021
Visualisierung
WLK
Kategorie
Wettbewerb, ohne Rang
Auftraggeber
Gemeinde Belp
Team
Weber + Brönnimann, Bauingenieur
Termine
2021
Visualisierung
WLK