Umbau «Bubenschulhaus» in Giffers

Kategorie
Umbau und energetische Sanierung

Auftraggeber
Gemeinden Giffers und Tentlingen

Team
ASAG Sturny, Bauingenieur
B2, Fachplanung HLKS
Open-Ing., Fachplanung Elektro

Phasen
Wettbewerb (1. Rang)
Vorprojekt-Ausführung

Termine
2023 - 2024 Projektplanung
2025 - 2026 Ausführung

Fotografie
WLK

Beschrieb
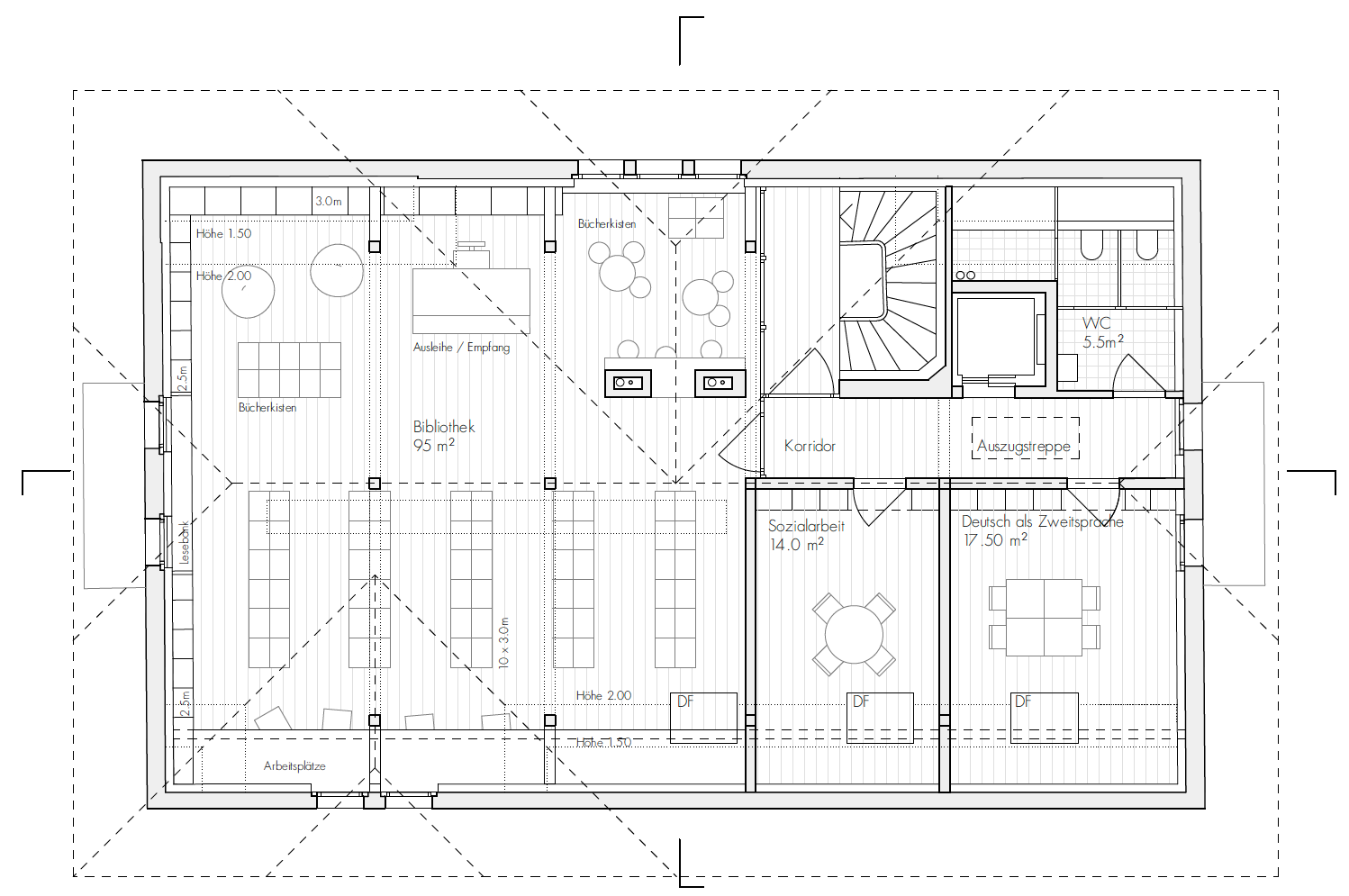
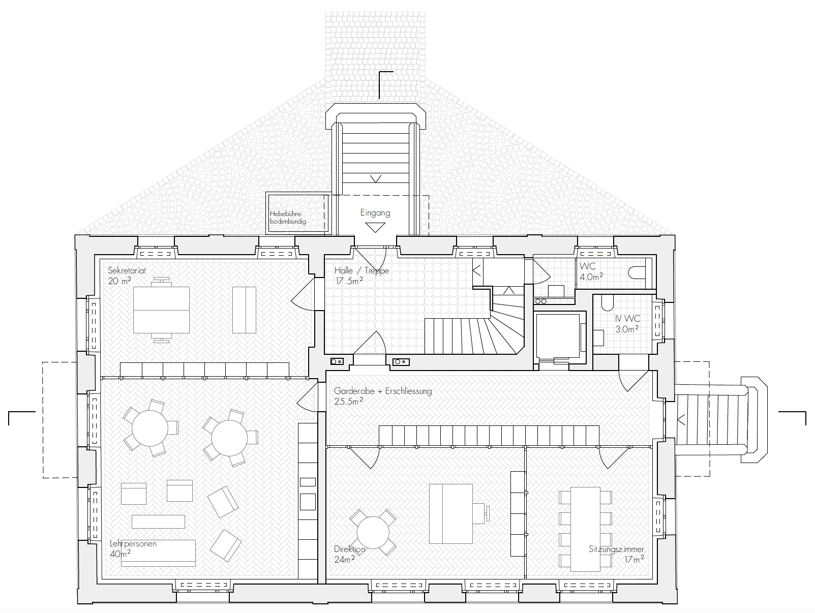
Das im Jahre 1916 erbaute Bubenschulhaus soll zukünftig Räume für Fördermassnahmen, Schuldienste sowie Arbeitsräume aufnehmen. Im Dachgeschoss soll eine öffentliche Bibliothek untergebracht werden.

Das Gebäude steht unter Denkmalschutz und kann aussen nicht verändert werden. Unter Berücksichtigung der bestehenden Fensteröffnungen erhalten alle Geschosse übersichtlich gestaltete und dem Raumprogramm entsprechende Einteilungen.

Es ist vorgesehen, das Gebäude zu isolieren und so den sommerlichen, wie auch den winterlichen Wärmeschutz bedeutend zu verbessern. Hierzu werden Fenster ersetzt sowie die Aussenwände, der Boden im Untergeschoss und das Dach wärmegedämmt. Weiter müssen die gesamte Haustechnik sowie die sanitären Anlagen erneuert werden. Beheizt wird das Gebäude weiterhin mit der zentralen Heizung der Schulanlage. Die Hindernisfreiheit wird durch den Einbau eines Aufzuges im Innern sowie der Ergänzung einer Hebeplattform im Aussenbereich - für den Zugang zum Hochparterre - erreicht. Mit dem Einbau des Lifts und einer zusätzlichen Betonwand im Erdgeschoss können die heutigen statischen Anforderungen erfüllt werden.

Previous
Previous

Aktuell

Next
Next

Neubau Zweifamilienhaus in Balsthal